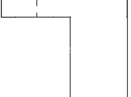
110 kv obyekt icarəsi

Elan kodu: 1930371

Kateqoriya Daşınmaz Əmlak
Obyekt / Ofis

Qiymət 3 500 Azn

Nəsimi rayonu İnqilab Asan xidmetin yaxınlığı obyekt yaşayış binasının 1-ci mərtəbəsində yerləşir. Yol qırağıdır.Sənəti qeyri yaşayış çıxarışdır.yol kənarıdır. Ön hissəsi vitrajdır. Obyektin açıq zal şəklindədir.təxmini çertyojun şəkil kimi elana yükləmişəm
110 kv 3500 azn icarəyə verilir

Sahil (Bütün Elanları)
Bakı şəhəri
0706738XXXnömrəni göstər

Tarix: 19.11.2025


Obyekt satılır 118 kv

Obyekt satılır 118 kv.m Sabunçu xəstəxanasının yanı 118 kv, tə'mirli və Çıxarışlıdır 118 min manat sonu !

118000 Azn
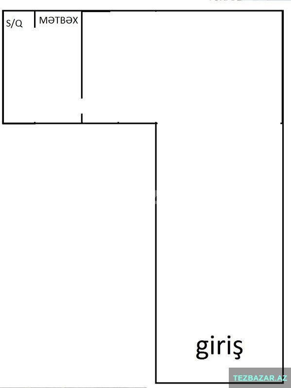
Nərimanovda plazada 1 otaqli ofislerin icarəsi

Nərimanov rayonu, Nərimanov metrosu, Əhməd Rəcəbli küçəsi, Şəki dairesinin yaxınlığı, ofis plazanın orta mərtəbəsidə yerləşir.lift var. sanitar qovşaq hər bir otaqda var. Mətbəx ümumidir. Su, işıq, istilik qiymətə

300 Azn
Anbar Baki Quba yolu

Sumqayıt şəhəri, Bakı-Quba şossesi Sumqayıt şəhəri, "Sumqayıt" yazısına yaxın, əsas yolun üstündə anbar icarəyə verilir! Ümumi sahəsi 1100 kv.m. İşıq, su və qaz daima. Anbar yüksək gərginlikli

4000 Azn
Nərimanovda 160 kv esyali ofis

Nərimanov rayonu, Nərimanov metrosu, Əhməd Rəcəbli küçəsi, Şəki dairesinin yaxınlığı, ofis plazanın orta mərtəbəsidə yerləşir.lift var.giriş çıxış 7/24-dür. Su, işıq, istilik, mebellər komunal qiymətə daxildir. Giriş

2500 Azn
28mayda 45 kv mağaza icarəsi

Nəsimi rayonu, 28 may 5 dəqiqəlik piyada, məsafədə obyekt yaşayış binasının 1-ci mərtəbəsində yerləşir.yol qırağıdır.hal hazırda mağaza kimi istifadə olunur.noyabr sonu təhvil veriləcək obyekt.Obyektin sənəti qeyri

2000 Azn
Anbar 180 kv.m

Təsərrüfatınızın və malınızın etibarlı saxlanması üçün anbar sahəsi! Nərimanov rayonu, "Ulduz" metrosu yaxınlığında anbar icarəyə verilir! Ümumi sahəsi 180 kv.m. Anbarlar üçün ayrıca su və işıq xətti (3

1500 Azn
ofis icarəsi Nərimanovda

Nərimanov rayonu, Nərimanov metrosu, Əhməd Rəcəbli küçəsi, Şəki dairesinin yaxınlığı, ofis plazanın orta mərtəbəsidə yerləşir.lift var. sanitar qovşaq hər bir otaqda var. Mətbəx ümumidir. Su, işıq, istilik qiymətə

650 Azn
28mayda 110 kv obyekt icarəsi

Yanvar Ayında təhvil veriləcəkdir. Nəsimi rayonu, 28may və Xətai metrosuna yaxın Nefçilər Xəstəxanasına yaxın obyekt yaşayış binasının 1-ci mərtəbəsində yerləşir. 2 zal, 1 otaq, və sanitar qovşaqdan ibarətdir.arxa

1500 Azn
Obyekt Fitnes mərkəzi

Fitness club icarəsində olan Obyekt satılır 600 kv.m, 3500 AZN icarə 9 mikrorayon ərazisində 1.1 milyon manat

1100000 Azn
Bakixanov qes.3 otagli satilir

Sabuncu r-n., Bakixanov qes., Akkord MTK-da 20/13 mertebesinde, sahesi 99 kv.m., ela temirli istilik sistemi kombi 3 otagli menzil satilir. Senedi-Cixariw. Butun infrastruktur etrafinda. Ofis komissiyasi 1 % tewkil edir

189000 Azn
Obyekt icarəyə verilir

Neftçilər metrosunun çıxışında 100kv Qeyri-yaşayış obyekti icarəyə verilir.Obyektin kupçası, işığı, suyu var.Yeni təmir olunub.Makler əlaqə saxlamasın.Fikri ciddi olan şəxslər aşağıdakı nömrə ilə əlaqə saxlasın

10000 Azn
Gənclikde 100 kv esyali ofis icarəsi

Nərimanov rayonu Gənclik metrosundan 10 dəqiqəlik piyada məsafədə obyekt ayrı tikili 1/1 2 otaq mətbəx və sanitar qovşaqdan ibarətdir.yoldan içəridir. Hər zaman ofis kimi istifadə olunub mətbəxidə otaq etsək 3 otaq

1200 Azn
Bakıxanovda 4 mərtəb.abyekt satılır

Bakıxanovda çox çox təcili olaraq 4 mərtəbəli 8 sotda tikilmış 1540 kv.m tikili sahıəsi olan abyekt çox tıcili olaraq dəyərindən çox aşağı qiymətə satılır.Abyekt şadlıq evi, mərasim evi, klinika , supermarket, tədris

850000 Azn
tqdk yaxinligi zirzemi icarəsi

Nəsimi rayonu inqilab Köhnə T.Q.D.K. yaxınlığı Obyekt ayrı tikilinin zirzəmisində yerləşir. yol qırağıdır. 1 zal 1 kiçik otaqdan ibarətdir. Playsation və kafe restorana icarəyə verilmir.digər profillərə icarəyə verilir

500 Azn
Yeni tikili 3 otaq

Yasamal rayonu, "Nizami" metrosu yaxınlığında, "Caspian Plaza"ya yaxın 6-cı paraleldə tam yaşayışlı elit tipli yeni tikilidə 3 otaqlı mənzil kirayə verilir! Yüksək keytiyyətli əla təmir! Mərtəbə:

1300 Azn
Kafe arendaya verilir

Kafe kimi fəaliyyət gostərir , istiyən olsa boş obyekt kimidə götürə bilər.qaz, su işıq internet kamera sistemi var

800 Azn

ustalar cam balkon ehtiyat hisseleri ev temiri tecili ucuz satilan evler 2025 kreditle sumqayitda satilan evler ev esyalari elil arabasi turlar.az masinlar kombi ustasi kalonkalar kredit ipotekada olan evler